delta
progetti
bioarchitettura a rovigo
Arch. Vittorino Dainese
architetto rovigo
Home
Profilo Studio
Attività
Progetti e Realizzazioni
Utilities
Contatti
Appuntamento
Informazioni
Area riservata
Photogallery
News
E-Book
Restauri e piani recupero
Via Gorizia, Rovigo
Casa Chiarion, Torino
Casa Marin, Adria
Campanile di Rivà, Ariano Pol
Casa anziani, Villadose
Piruea ex Gasometro
Retex 2
Restauro edificio 8/15
Restauro edificio 9
Piano di rec. urb. Green City
Progetti e Realizzazioni >>
Opere & Servizi selezionati >>
Restauri e piani recupero >>
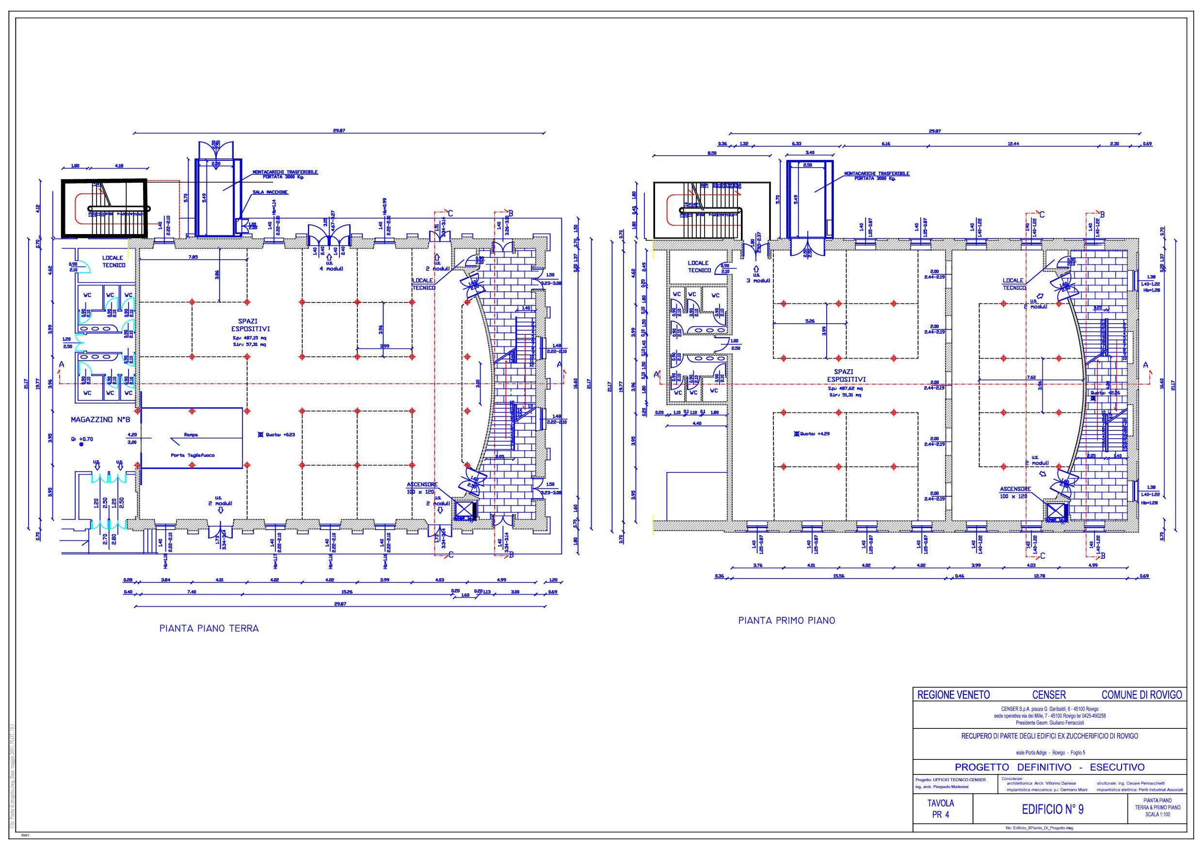
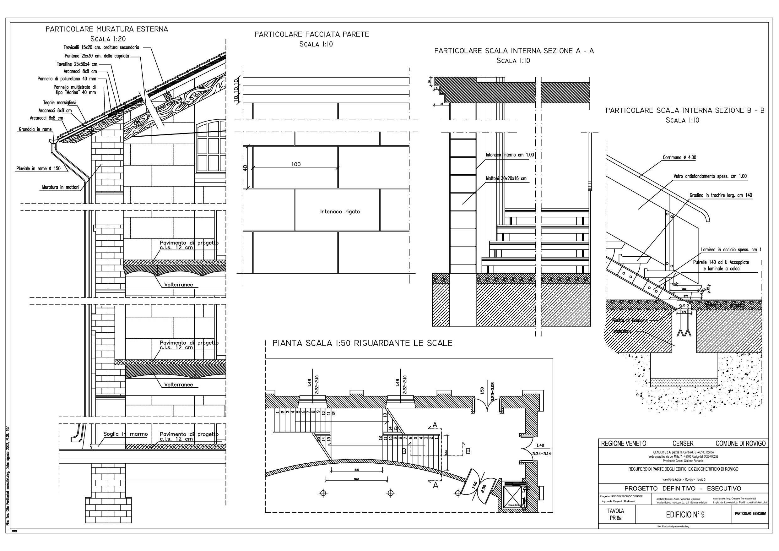
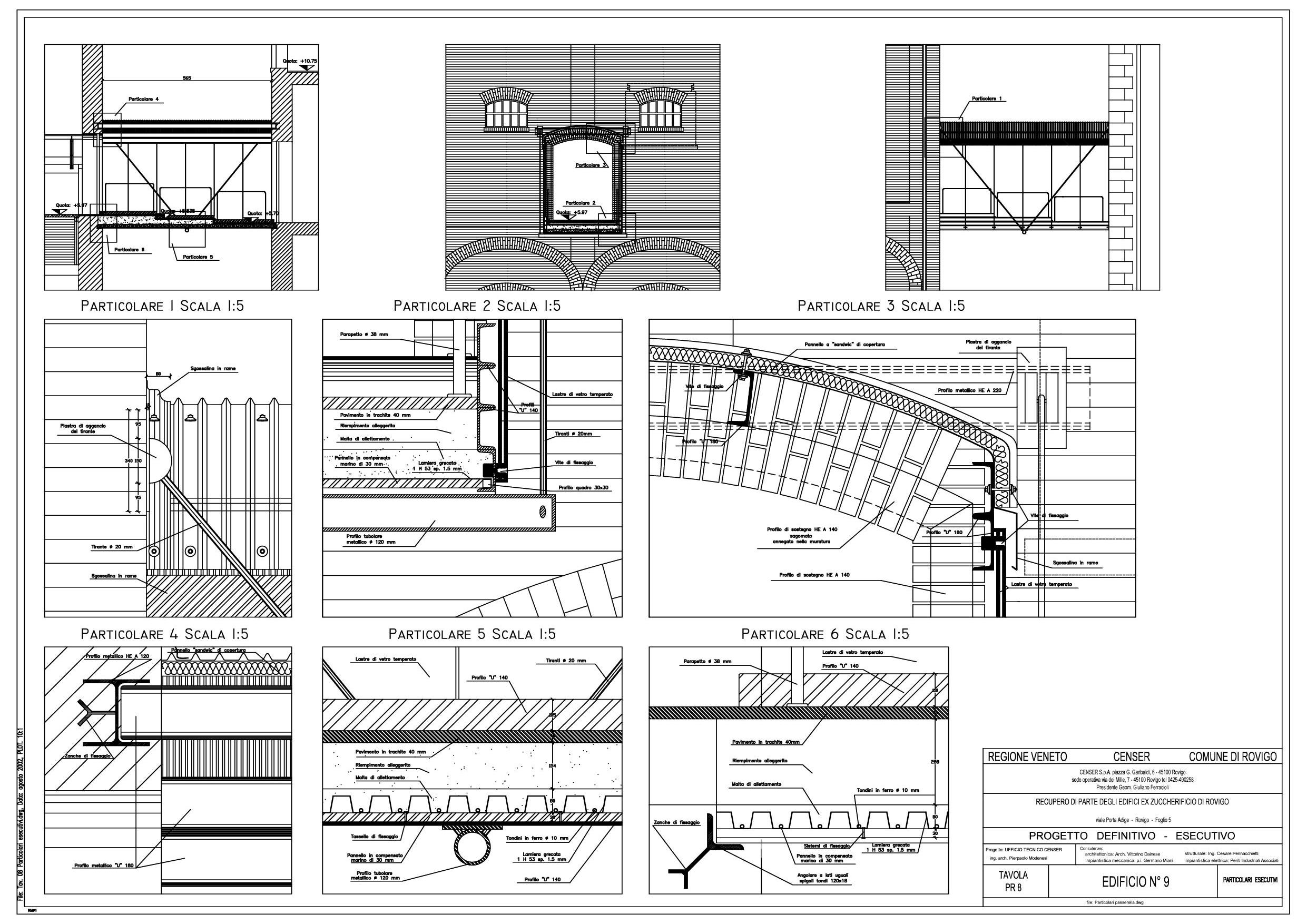
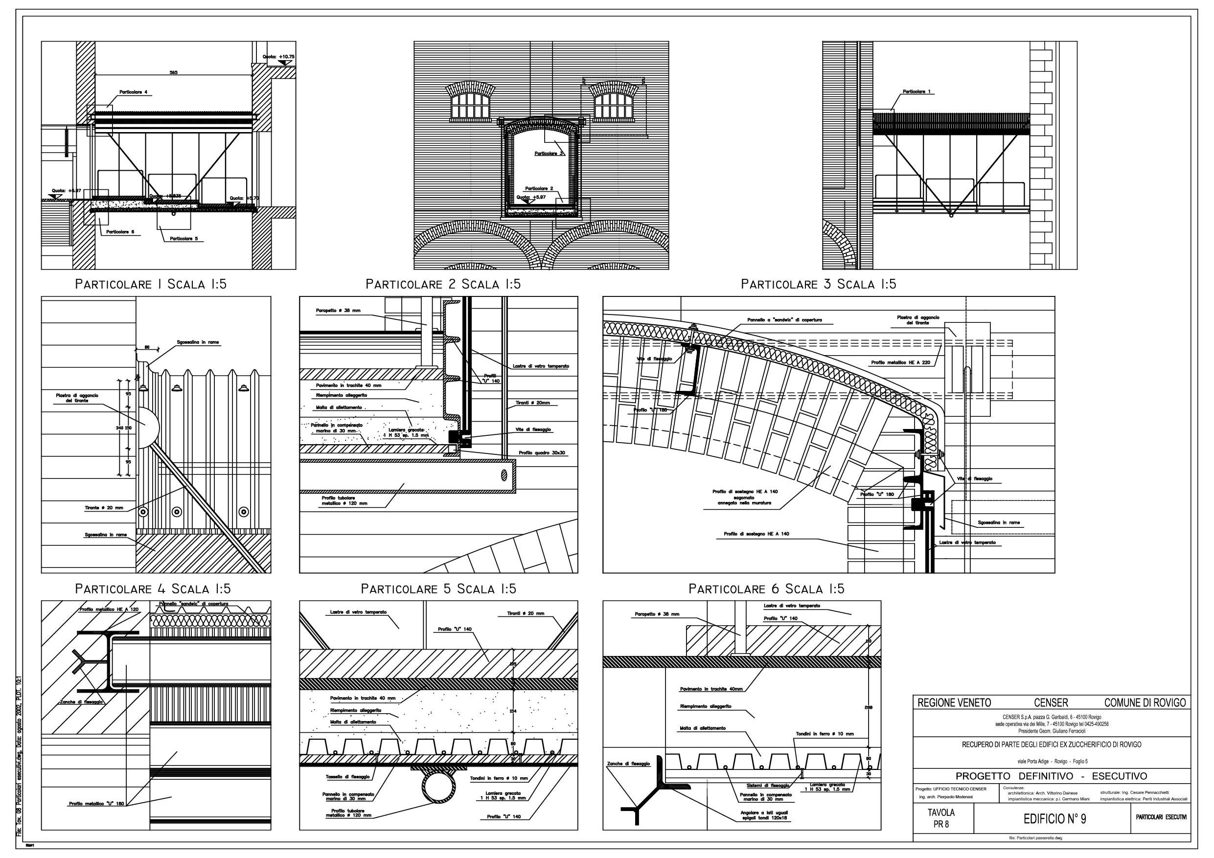
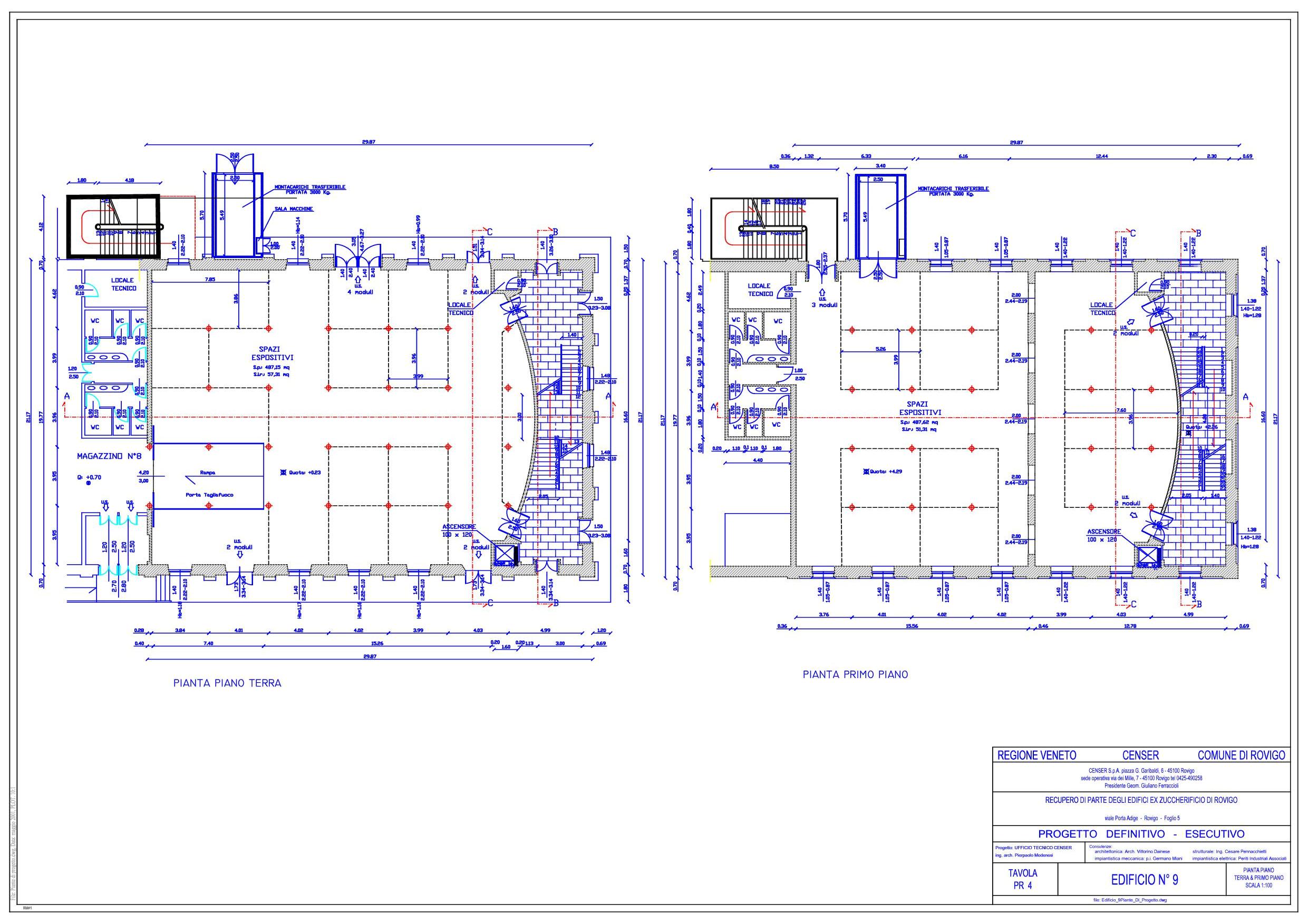
Restauro edificio 9
Titolo dell'opera:
Restauro dell'edificio 9
Committente:
CENSER Spa
Dainese Vittorino - Via Parenzo Cesare, 13 Rovigo (RO) - P.IVA 00956600290
-
Privacy
-
Note legali
Powered by
Logos Engineering
-
Lexun ®
- 17/02/2026